電話でのお問い合わせは046-875-1221
〒240-0111 神奈川県三浦郡葉山町一色2012
住環境良好 生活至便。
一色海岸徒歩3分
バス停近く スーパー・ドラッグストア近く
ペット飼育不可です。




| 賃料 | 賃料 100,000円/月 | 管理費 | |
|---|---|---|---|
| 所在地 | 三浦郡葉山町一色 | 敷金 礼金 |
2ヶ月 1ヶ月 |
| 最寄駅 | JR横須賀線逗子駅よりバス16分 「葉山」バス停より徒歩2分 |
駐車場 | 無 |
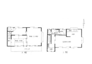
| 建物構造規模 | 木造 2階建 | 間取り | 2LDK |
| 専有面積 | 76.18u | 築年月 | 平成8年4月築 |
| 契約期間 | 2年(更新可) | 入居日 | 相談 |
| 設備 | 公営水道 プロパンガス 東京電力 公共下水 |
備考 | ペット飼育不可。 保証会社加入の事 保証料:月額合計の30% 保険等加入要 20,000円/2年 ~ 退去時のハウスクリーニング費用は借主の負担となります。 庭の草むしり及び手入れは、借主にて行うものとします。 更新料 新賃料の0.5ヶ月分 民泊等不可。 鍵の交換費用(入居時)は借主の負担となります (要見積)。 図面と現況が異なる場合は現況を優先させていただきます。 仲介物件につき、ご成約の際には月額賃料の1ヶ月相当額(別途消費税)を仲介手数料として申し受けます。 |
| 物件情報更新日 | 2026.4.2 | 次回更新予定日 | 2026.4.16 |